25
$3,250 Rent
Listed 1 hour
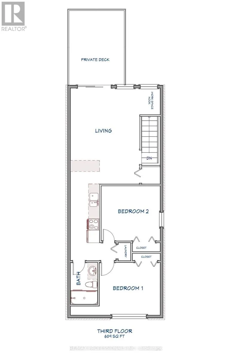
3RD FLOOR - 134 ARGYLE STREET
· 2
· 1.0
· 0
· 0 - 699
Key Facts
Key facts for 3RD FLOOR - 134 ARGYLE STREET
Property Type
House, House
Parking
Garage: No, 0 parking
MLS #
C12470990
Size
0 - 699 sqft
Basement
N/A
Listed on
-
Lot size
-
Tax
-
Days on Market
-
Year Built
-
Maintenance Fee
-
Description
Live above it all in this sunlit, top-floor apartment featuring soaring cathedral ceilings, a spacious north-facing deck, and a perfect balance of character and comfort. The bright galley-style kitchen includes an island, quartz counters, and stainless steel appliances, opening to an airy living are...a with room for a cozy living room and desk for your home office setup. Both bedrooms are generous in size, with the primary overlooking Osler Park - a rare city view that adds a touch of calm to everyday life. Step outside onto your oversized deck, ideal for morning coffee, weekend gatherings, or simply enjoying the treetop views. Located in one of Toronto's most desirable neighbourhoods, just a short stroll to Trinity Bellwoods Park and Queen West. Enjoy brunch at Union, pizza from Badiali, or a craft beer at Bellwoods Brewery - all nearby. With a Walk Score of 97, you have grocery stores, cafés, gyms, and transit at your doorstep. The 501 Queen streetcar offers easy access downtown, while nearby Dundas and Ossington give you endless options for dining and entertainment. This home blends urban living with everyday comfort - perfect for anyone who values space, light, and location. *Please note - images with furnishings are virtually staged. (id:10452)
Similar Properties (No results)
Room Types
Bedroom
-
Dimensions 2.74 m x 3.05 m
89.95 sqft
Living room
-
Dimensions 4.11 m x 4.88 m
215.89 sqft
Other
-
Dimensions 4.27 m x 3.35 m
153.97 sqft
Listing courtesy of: RE/MAX PROFESSIONALS INC.
This REALTOR.ca listing content is owned and licensed by REALTOR® members of The Canadian Real Estate Association.